Rubriky:
- Plynoměrové skříně, HUP, průmyslové a technologické
- Elektro skříně
- Sestavy skříní a atypy -- energetické pilíře
- Příslušenství a ostatní sortiment
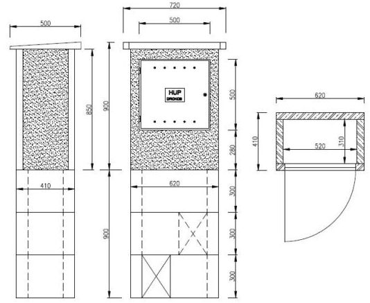
PS1 – betonová skříň plyn – HUP střední

- Použití:pro umístění hlavního uzávěru, regulátoru plynu a plynoměru G4, G6 využívá se pro přípojku RD, pro umístění do plotu s nízkou nebo bez podezdívky volně do předzahrádky případně s obráceným sklonem střechy k objektu. Často využívána při rekonstrukcích STL a NTL plynovodů a přípojek.
- Vnější rozměr:62/41/90 cm
- Dvířka:50x50 cm
- Vybavení:instalační rám
- Hmotnost skříně:185kg
- Základ:dle osazení - dílce výšky 30 cm tvar O plný a dva s otvorem tvar G
PS1 – betonová skříň plyn - výkres









Obsah sekce Plynoměrové skříně, HUP, průmyslové a technologické
- Plynoměrové skříně - INFO
- PEMN – betonová skříň plyn – HUP extra malá nízká
- PEMV – betonová skříň plyn – HUP extra malá vysoká
- PSM – betonová skříň plyn – HUP super malá
- PM1 – betonová skříň plyn – HUP malá
- PS1 – betonová skříň plyn – HUP střední
- PSS – betonová skříň plyn – HUP ze sestavy
- PVS – betonová skříň plyn – HUP vysoká ze sestavy
- PO1 – betonová skříň plyn – HUP s dvířky 60/60 nízká
- PO2 – betonová skříň plyn – HUP s dvířky 60/60 – v. 110
- PO3 – betonová skříň plyn – HUP s dvířky 60/60 – v. 120
- PD90 – betonová skříň plyn – HUP velká šířka 90
- PD100 – betonová skříň plyn – HUP velká metrovka
- PD100V (alternativně PD100VH) – betonová skříň plyn – HUP velká metrovka vysoká
- PD100H – betonová skříň plyn – HUP velká metrovka hluboká
- PD135 (alternativně PD135H) – betonová skříň plyn – HUP velká šířka 135
- PD165 – betonová skříň plyn – HUP velká šířka 165
- PP1V – betonová skříň plyn – HUP průmyslová vysoká - jednoduchá
- PP2V – betonová skříň plyn – HUP průmyslová vysoká - dvojitá
- PP3V – betonová skříň plyn – HUP průmyslová vysoká - trojitá
- PP4V – betonová skříň plyn – HUP průmyslová vysoká - čtyřnásobná
- PP1VH – betonová skříň plyn – HUP průmyslová jednoduchá hluboká
- PP2VH – betonová skříň plyn – HUP průmyslové dvojče hluboké
- PP3VH – betonová skříň plyn – HUP průmyslové trojče hluboké
- PP4VH – betonová skříň plyn – HUP průmyslové čtyřče hluboké
