Rubriky:
- Plynoměrové skříně, HUP, průmyslové a technologické
- Elektro skříně
- Sestavy skříní a atypy -- energetické pilíře
- Příslušenství a ostatní sortiment
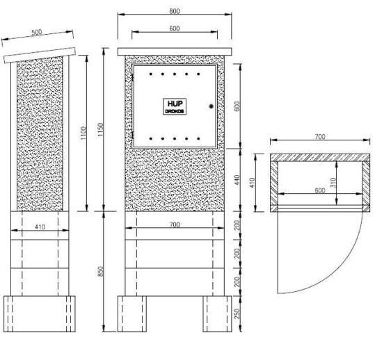
PO2 – betonová skříň plyn – HUP s dvířky 60/60 – v. 110

- Použití:pro umístění hlavního uzávěru, regulátoru plynu a plynoměru G4, G6 využívá se pro připojení RD a při rekonstrukcích v oblastech, kde je požadavek na větší vnitřní prostor skříně. Osazení do plotu s nízkou nebo bez podezdívky volně do předzahrádky případně s obráceným sklonem střechy k objektu.
- Vnější rozměr:70/41/115 cm
- Dvířka:60x60 cm
- Vybavení:instalační rám
- Hmotnost skříně:268kg
- Základ:dílce výšky 20 cm – základové věnce ve třech vrstvách osazené kratší stranou na bednících tvárnicích vyplněných betonem
PO2 – betonová skříň plyn - výkres


Obsah sekce Plynoměrové skříně, HUP, průmyslové a technologické
- Plynoměrové skříně - INFO
- PEMN – betonová skříň plyn – HUP extra malá nízká
- PEMV – betonová skříň plyn – HUP extra malá vysoká
- PSM – betonová skříň plyn – HUP super malá
- PM1 – betonová skříň plyn – HUP malá
- PS1 – betonová skříň plyn – HUP střední
- PSS – betonová skříň plyn – HUP ze sestavy
- PVS – betonová skříň plyn – HUP vysoká ze sestavy
- PO1 – betonová skříň plyn – HUP s dvířky 60/60 nízká
- PO2 – betonová skříň plyn – HUP s dvířky 60/60 – v. 110
- PO3 – betonová skříň plyn – HUP s dvířky 60/60 – v. 120
- PD90 – betonová skříň plyn – HUP velká šířka 90
- PD100 – betonová skříň plyn – HUP velká metrovka
- PD100V (alternativně PD100VH) – betonová skříň plyn – HUP velká metrovka vysoká
- PD100H – betonová skříň plyn – HUP velká metrovka hluboká
- PD135 (alternativně PD135H) – betonová skříň plyn – HUP velká šířka 135
- PD165 – betonová skříň plyn – HUP velká šířka 165
- PP1V – betonová skříň plyn – HUP průmyslová vysoká - jednoduchá
- PP2V – betonová skříň plyn – HUP průmyslová vysoká - dvojitá
- PP3V – betonová skříň plyn – HUP průmyslová vysoká - trojitá
- PP4V – betonová skříň plyn – HUP průmyslová vysoká - čtyřnásobná
- PP1VH – betonová skříň plyn – HUP průmyslová jednoduchá hluboká
- PP2VH – betonová skříň plyn – HUP průmyslové dvojče hluboké
- PP3VH – betonová skříň plyn – HUP průmyslové trojče hluboké
- PP4VH – betonová skříň plyn – HUP průmyslové čtyřče hluboké
