Rubriky:

EMS – betonová skříň elektroměrová ze sestavy
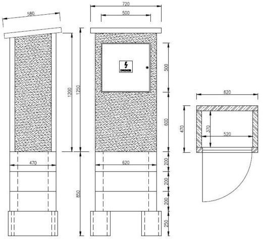
- Použití:pilíř pro elektroměr s plechovými dvířky elektro krytí IP43 a přípravou pro umístění elektroměrové desky 45/45 cm (Plzeňské dílo, v.d.), která se příslušně vystrojí, skříň vhodná pro sdružování do sestav – energetický pilíř objektu. Betonová skříň může být vyrobena s příslušným otvorem pro osazení elektroměrové subdodavatelské skříně kovové, plastové, beton-plastové výrobců DCK Holoubkov, Elplast-KPZ Rokycany, Esta Ivančice, Arova servis… apod.
- KOMPLETNÍ ELEKTROMĚROVÝ ROZVADĚČ - můžeme dodat kompletní výrobek včetně vystrojené elektroměrové desky, pak možno vydat Certifikát Elektrotechnického zkušebního ústavu v Praze Troji na Elektroměrový rozvaděč a ES prohlášení o shodě s výrobním číslem.
- Vnější rozměr:62/47/125 cm (možno vyrobit i skříň 70/41/125 s dvířky 60/60, případně širší skříň pro více elektroměrů nebo dle požadavku na elektroměrovou část)
- Dvířka:50x50 cm
- Hmotnost skříně:220kg
- Základ:dílce výšky 20 cm – základové věnce ve třech vrstvách osazené kratší stranou na bednících tvárnicích vyplněných betonem
EMS – betonová skříň elektroměrová - výkres
EMS – betonová skříň elektroměrová s otvorem - výkres











Obsah sekce Elektro skříně
- Elektro skříně - INFO
- EMS – betonová skříň elektroměrová ze sestavy
- EMSSV – betonová skříň elektroměrová a pojistková vysoká ze sestavy
- ESS – betonová skříň přípojková smyčkovací
- SP – betonový pilíř pro SP100
- SR135 - betonový pilíř pro rozpojovací skříně SR (naležato)
- SS62 – betonový pilíř pro skříň SS300
- SR62 – betonový pilíř pro rozpojovací skříně (na výšku)
- SR90 – betonový pilíř pro rozpojovací skříně SR (na výšku)
- VO – betonová skříň elektro
