Rubriky:

EMSSV – betonová skříň elektroměrová a pojistková vysoká ze sestavy
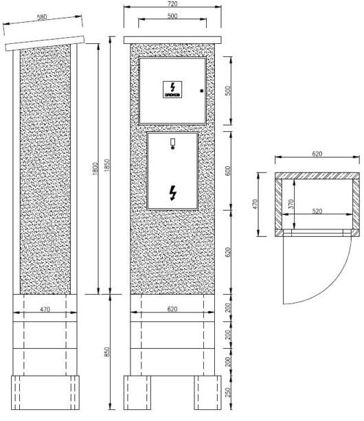
- Použití:pilíř pro elektroměr jako EMS, ale vysoká s otvorem pod elektroměrovou částí pro pojistkovou smyčkovací skříň SS (100, 200 ..) rozměr dle příslušného energetického závodu, skříň vhodná pro sdružování do sestav – energetický pilíř objektu.
- Vnější rozměr:62/47/185 cm (možno vyrobit i širší skříně dle požadavku na elektroměrovou část)
- Dvířka:50x50 cm
- Hmotnost skříně:380kg
- Základ:dílce výšky 20 cm – základové věnce ve třech vrstvách osazené kratší stranou na bednících tvárnicích vyplněných betonem
EMSSV – betonová skříň elektroměrová a pojistková - výkres





Obsah sekce Elektro skříně
- Elektro skříně - INFO
- EMS – betonová skříň elektroměrová ze sestavy
- EMSSV – betonová skříň elektroměrová a pojistková vysoká ze sestavy
- ESS – betonová skříň přípojková smyčkovací
- SP – betonový pilíř pro SP100
- SR135 - betonový pilíř pro rozpojovací skříně SR (naležato)
- SS62 – betonový pilíř pro skříň SS300
- SR62 – betonový pilíř pro rozpojovací skříně (na výšku)
- SR90 – betonový pilíř pro rozpojovací skříně SR (na výšku)
- VO – betonová skříň elektro
