Elektro skříně

ESS – betonová skříň přípojková smyčkovací
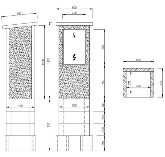
- Použití:pilíř pro osazení skříně přípojkové smyčkovací do šířky 40 cm rozměr dle příslušného energetického závodu, vhodná do sestav.
- Vnější rozměr:50/47/125
- Hmotnost skříně:200kg
- Základ:dílce výšky 20 cm – základové věnce ve třech vrstvách osazené kratší stranou na bednících tvárnicích vyplněných betonem.
ESS – betonová skříň přípojková smyčkovací - výkres





Obsah sekce Elektro skříně
- Elektro skříně - INFO
- EMS – betonová skříň elektroměrová ze sestavy
- EMSSV – betonová skříň elektroměrová a pojistková vysoká ze sestavy
- ESS – betonová skříň přípojková smyčkovací
- SP – betonový pilíř pro SP100
- SR135 - betonový pilíř pro rozpojovací skříně SR (naležato)
- SS62 – betonový pilíř pro skříň SS300
- SR62 – betonový pilíř pro rozpojovací skříně (na výšku)
- SR90 – betonový pilíř pro rozpojovací skříně SR (na výšku)
- VO – betonová skříň elektro
