Rubriky:

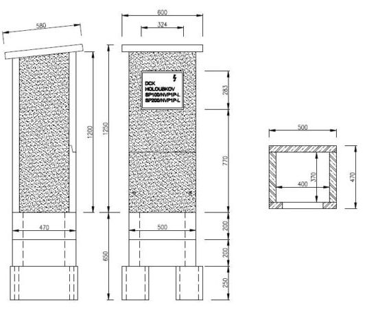
SP – betonový pilíř pro SP100
- Použití:pilíř pro s přípojkovou skříní SP pro připojení vodičů do 50 mm2 (ze sloupu nadzemního vedení) vhodná pro sdružování do sestav. Pilíř má demontovatelnou spodní čelní část, kde je držák tvaru L pro příchytky SONAP.
- Vnější rozměr:50/47/125 cm
- Hmotnost skříně:205kg
- Základ:dílce výšky 20 cm – základové věnce ve dvou vrstvách osazené kratší stranou na bednících tvárnicích vyplněných betonem
SP – betonový pilíř pro SP100 - výkres



Obsah sekce Elektro skříně
- Elektro skříně - INFO
- EMS – betonová skříň elektroměrová ze sestavy
- EMSSV – betonová skříň elektroměrová a pojistková vysoká ze sestavy
- ESS – betonová skříň přípojková smyčkovací
- SP – betonový pilíř pro SP100
- SR135 - betonový pilíř pro rozpojovací skříně SR (naležato)
- SS62 – betonový pilíř pro skříň SS300
- SR62 – betonový pilíř pro rozpojovací skříně (na výšku)
- SR90 – betonový pilíř pro rozpojovací skříně SR (na výšku)
- VO – betonová skříň elektro
