Rubriky:

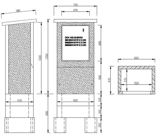
SS62 – betonový pilíř pro skříň SS300
- Použití:pilíř s přípojkovou smyčkovací skříní SS pro připojení vodičů do 240 mm2 (zemním kabelem) vhodná pro sdružování do sestav. Pilíř má demontovatelnou spodní čelní část, kde je držák tvaru L pro příchytky SONAP.
- Vnější rozměr:62/47/125 cm
- Hmotnost skříně:227kg
- Základ:dílce výšky 20 cm – základové věnce ve dvou vrstvách osazené kratší stranou na bednících tvárnicích vyplněných betonem.
SS62 – betonový pilíř pro skříň SS300 - výkres







Obsah sekce Elektro skříně
- Elektro skříně - INFO
- EMS – betonová skříň elektroměrová ze sestavy
- EMSSV – betonová skříň elektroměrová a pojistková vysoká ze sestavy
- ESS – betonová skříň přípojková smyčkovací
- SP – betonový pilíř pro SP100
- SR135 - betonový pilíř pro rozpojovací skříně SR (naležato)
- SS62 – betonový pilíř pro skříň SS300
- SR62 – betonový pilíř pro rozpojovací skříně (na výšku)
- SR90 – betonový pilíř pro rozpojovací skříně SR (na výšku)
- VO – betonová skříň elektro
