Rubriky:

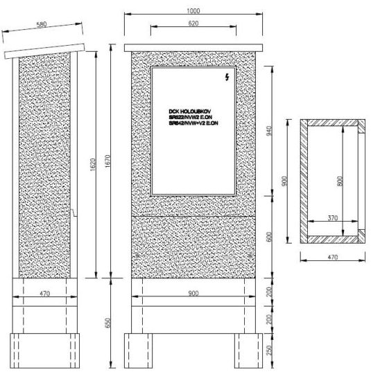
SR90 – betonový pilíř pro rozpojovací skříně SR (na výšku)
- Použití:pilíř pro energetiku E.ON s rozpojovací jistící skříní SR, vhodná pro sdružování do sestav. Pilíř má demontovatelnou spodní čelní část, kde je držák tvaru L pro příchytky SONAP.
- Vnější rozměr:90/47/167 cm
- Vybavení:skříň DCK Holoubkov SR522/NVW2, SR642/NVW+V2
- Hmotnost skříně:485kg
- Základ:dílce výšky 20 cm – základové věnce ve dvou vrstvách osazené kratší stranou na bednících tvárnicích vyplněných betonem.
EON SR90 – betonový pilíř - výkres





Obsah sekce Elektro skříně
- Elektro skříně - INFO
- EMS – betonová skříň elektroměrová ze sestavy
- EMSSV – betonová skříň elektroměrová a pojistková vysoká ze sestavy
- ESS – betonová skříň přípojková smyčkovací
- SP – betonový pilíř pro SP100
- SR135 - betonový pilíř pro rozpojovací skříně SR (naležato)
- SS62 – betonový pilíř pro skříň SS300
- SR62 – betonový pilíř pro rozpojovací skříně (na výšku)
- SR90 – betonový pilíř pro rozpojovací skříně SR (na výšku)
- VO – betonová skříň elektro
