Rubriky:

VO – betonová skříň elektro
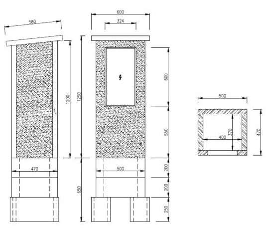
- Použití:pilíř pro osazení skříně pro venkovní osvětlení VO ( pro slaboproudy, ovládání apod.) rozměr otvoru a skříně dle příslušného výrobce a požadavku odběratele, vhodná do sestav.
- Vnější rozměr:například 50/47/125
- Hmotnost skříně:200kg
- Základ:dílce výšky 20 cm – základové věnce ve třech vrstvách osazené kratší stranou na bednících tvárnicích vyplněných betonem.
VO – betonová skříň elektro - výkres



Obsah sekce Elektro skříně
- Elektro skříně - INFO
- EMS – betonová skříň elektroměrová ze sestavy
- EMSSV – betonová skříň elektroměrová a pojistková vysoká ze sestavy
- ESS – betonová skříň přípojková smyčkovací
- SP – betonový pilíř pro SP100
- SR135 - betonový pilíř pro rozpojovací skříně SR (naležato)
- SS62 – betonový pilíř pro skříň SS300
- SR62 – betonový pilíř pro rozpojovací skříně (na výšku)
- SR90 – betonový pilíř pro rozpojovací skříně SR (na výšku)
- VO – betonová skříň elektro
