Rubriky:
- Plynoměrové skříně, HUP, průmyslové a technologické
- Elektro skříně
- Sestavy skříní a atypy -- energetické pilíře
- Příslušenství a ostatní sortiment

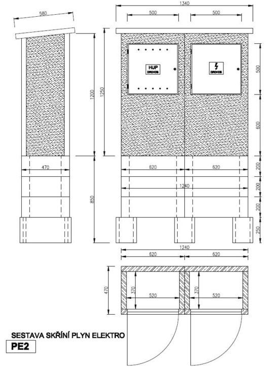
PE2 – sestava přípojkových skříní plyn – HUP a elektro
- Použití:sestava ze skříní PSS plynoměrová, EMS elektroměrová / ve variantě s plechovými dvířky a přípravou pro osazení elektroměrové desky 45x45 cm Plzeňské dílo v.d., nebo se vsazenou elektroměrnou skříní subdodavatele např. ER212 DCK Holoubkov / pro jeden dům, tam kde již je elektro pojistková skříň např. na sloupě nadzemního vedení NN využívá se při budování nových sítí – ZTV pro umístění na hranici pozemku.
- Vnější rozměr:124/47/125 cm
- Dvířka:50x50 cm
- Hmotnost sestavy:450kg
- Základ:dílce výšky 20 cm – základové věnce ve třech vrstvách osazené kratší stranou na bednících tvárnicích vyplněných betonem.
PE2 – sestava přípojkových skříní plyn – HUP a elektro - výkres




Obsah sekce Sestavy skříní a atypy -- energetické pilíře
- Sestavy skříní - INFO
- PE2 – sestava přípojkových skříní plyn – HUP a elektro
- ES2 – sestava přípojkových skříní elektro
- PE3 – sestava přípojkových skříní plyn – HUP, elektroměrová a pojistková 1RD
- PE5 – sestava přípojkových skříní plyn – HUP, elektroměrová a pojistková 2RD
- PEV – sestava přípojkových skříní plyn – HUP, elektroměrová a pojistková 1RD
- PEV – sestava přípojkových skříní plyn – HUP, elektroměrová a pojistková 2RD
- PE3 - 135 – pilíř se sestavou subdodavatelských skříní – plastových
- PE3-165 – pilíř se sestavou subdodavatelských skříní – beton-plastových
- PE3 - BPL – sestava přípojkových skříní plyn – HUP, elektroměrová a pojistková 1RD
- PENV70 – sestava přípojkových skříní plyn – HUP, elektroměrová a pojistková 1RD
- PENV90 – sestava přípojkových skříní plyn – HUP, elektroměrová a pojistková 2RD
- ERSR – pilíře se sestavou subdodavatelských skříní - verze široká
- ERSR – pilíře se sestavou subdodavatelských skříní - verze vysoká
