Rubriky:
- Plynoměrové skříně, HUP, průmyslové a technologické
- Elektro skříně
- Sestavy skříní a atypy -- energetické pilíře
- Příslušenství a ostatní sortiment

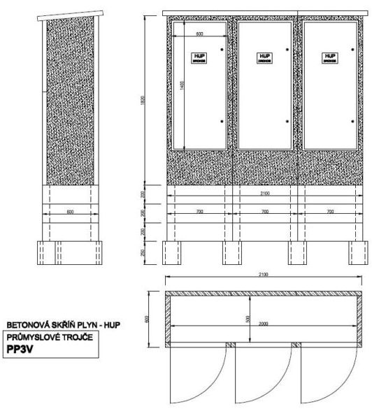
PP3V – betonová skříň plyn – HUP průmyslová vysoká - trojitá
- Použití:betonová skříň průmyslová vysoká určena pro umístění zařízení přípojek průmyslových podniků dle technologických požadavků se sestavuje příslušný počet modulů
- Vnější rozměr:210/60/180 cm
- Dvířka:60x140 cm pro jeden modul
- Hmotnost skříně:920 kg
- Základ:dílce výšky 20 cm – základové věnce ve třech vrstvách osazené kratší stranou na bednících tvárnicích vyplněných betonem
PP3V – betonová skříň plyn - výkres










Obsah sekce Plynoměrové skříně, HUP, průmyslové a technologické
- Plynoměrové skříně - INFO
- PEMN – betonová skříň plyn – HUP extra malá nízká
- PEMV – betonová skříň plyn – HUP extra malá vysoká
- PSM – betonová skříň plyn – HUP super malá
- PM1 – betonová skříň plyn – HUP malá
- PS1 – betonová skříň plyn – HUP střední
- PSS – betonová skříň plyn – HUP ze sestavy
- PVS – betonová skříň plyn – HUP vysoká ze sestavy
- PO1 – betonová skříň plyn – HUP s dvířky 60/60 nízká
- PO2 – betonová skříň plyn – HUP s dvířky 60/60 – v. 110
- PO3 – betonová skříň plyn – HUP s dvířky 60/60 – v. 120
- PD90 – betonová skříň plyn – HUP velká šířka 90
- PD100 – betonová skříň plyn – HUP velká metrovka
- PD100V (alternativně PD100VH) – betonová skříň plyn – HUP velká metrovka vysoká
- PD100H – betonová skříň plyn – HUP velká metrovka hluboká
- PD135 (alternativně PD135H) – betonová skříň plyn – HUP velká šířka 135
- PD165 – betonová skříň plyn – HUP velká šířka 165
- PP1V – betonová skříň plyn – HUP průmyslová vysoká - jednoduchá
- PP2V – betonová skříň plyn – HUP průmyslová vysoká - dvojitá
- PP3V – betonová skříň plyn – HUP průmyslová vysoká - trojitá
- PP4V – betonová skříň plyn – HUP průmyslová vysoká - čtyřnásobná
- PP1VH – betonová skříň plyn – HUP průmyslová jednoduchá hluboká
- PP2VH – betonová skříň plyn – HUP průmyslové dvojče hluboké
- PP3VH – betonová skříň plyn – HUP průmyslové trojče hluboké
- PP4VH – betonová skříň plyn – HUP průmyslové čtyřče hluboké
