Rubriky:
- Plynoměrové skříně, HUP, průmyslové a technologické
- Elektro skříně
- Sestavy skříní a atypy -- energetické pilíře
- Příslušenství a ostatní sortiment

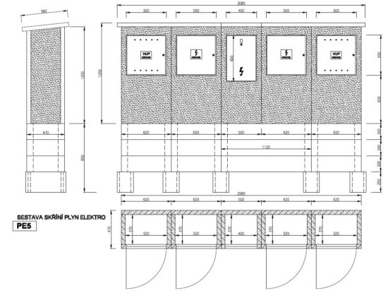
PE5 – sestava přípojkových skříní plyn – HUP, elektroměrová a pojistková 2RD
- Použití:sestava ze skříní PSS plynoměrová, EMS elektroměrová a pojistková pro dva domy, pojistková skříň se přizpůsobí dle příslušného energetického závodu ČEZ, PRE, (modifikace pro E.ON je samostatným výrobkem), případně možno do sestavy začlenit skříň vyšší rozpojovací SR. Využívá se při budování nových sítí – ZTV pro umístění na hranici pozemku.
- Vnější rozměr:310/47/125 cm /E.ON/
- Dvířka:50x50 cm
- Hmotnost sestavy:1100kg
- Základ:dílce výšky 20 cm – základové věnce ve třech vrstvách osazené kratší stranou na bednících tvárnicích vyplněných betonem.
PE5 – sestava přípojkových skříní plyn – HUP, elektroměrová a pojistková 2RD - výkres









Obsah sekce Sestavy skříní a atypy -- energetické pilíře
- Sestavy skříní - INFO
- PE2 – sestava přípojkových skříní plyn – HUP a elektro
- ES2 – sestava přípojkových skříní elektro
- PE3 – sestava přípojkových skříní plyn – HUP, elektroměrová a pojistková 1RD
- PE5 – sestava přípojkových skříní plyn – HUP, elektroměrová a pojistková 2RD
- PEV – sestava přípojkových skříní plyn – HUP, elektroměrová a pojistková 1RD
- PEV – sestava přípojkových skříní plyn – HUP, elektroměrová a pojistková 2RD
- PE3 - 135 – pilíř se sestavou subdodavatelských skříní – plastových
- PE3-165 – pilíř se sestavou subdodavatelských skříní – beton-plastových
- PE3 - BPL – sestava přípojkových skříní plyn – HUP, elektroměrová a pojistková 1RD
- PENV70 – sestava přípojkových skříní plyn – HUP, elektroměrová a pojistková 1RD
- PENV90 – sestava přípojkových skříní plyn – HUP, elektroměrová a pojistková 2RD
- ERSR – pilíře se sestavou subdodavatelských skříní - verze široká
- ERSR – pilíře se sestavou subdodavatelských skříní - verze vysoká
