Rubriky:
- Plynoměrové skříně, HUP, průmyslové a technologické
- Elektro skříně
- Sestavy skříní a atypy -- energetické pilíře
- Příslušenství a ostatní sortiment

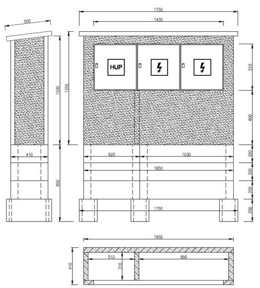
PE3 - 165 – pilíř se sestavou subdodavatelských skříní – beton-plastových
- Použití:pilíř pro sestavu beton-plastových skříní DCK Holoubkov plynoměrová, elektroměrová a pojistková pro jeden dům, případně možno do sestavy začlenit skříň rozpojovací SR.Využívá se při budování nových sítí – ZTV pro umístění na hranici pozemku. Prostor pod beton-plastovou skříní HUP v pilíři i v základu je oddělen betonovou přepážkou od prostoru elektro.
- Vnější rozměr:165/41/125 cm
- Hmotnost pilíře:520kg
- Základ:dílce výšky 20 cm – základové věnce ve třech vrstvách osazené kratší stranou na bednících tvárnicích vyplněných betonem.
PE3 - 165 – pilíř se sestavou subdodavatelských skříní – beton-plastových - výkres


Obsah sekce Sestavy skříní a atypy -- energetické pilíře
- Sestavy skříní - INFO
- PE2 – sestava přípojkových skříní plyn – HUP a elektro
- ES2 – sestava přípojkových skříní elektro
- PE3 – sestava přípojkových skříní plyn – HUP, elektroměrová a pojistková 1RD
- PE5 – sestava přípojkových skříní plyn – HUP, elektroměrová a pojistková 2RD
- PEV – sestava přípojkových skříní plyn – HUP, elektroměrová a pojistková 1RD
- PEV – sestava přípojkových skříní plyn – HUP, elektroměrová a pojistková 2RD
- PE3 - 135 – pilíř se sestavou subdodavatelských skříní – plastových
- PE3-165 – pilíř se sestavou subdodavatelských skříní – beton-plastových
- PE3 - BPL – sestava přípojkových skříní plyn – HUP, elektroměrová a pojistková 1RD
- PENV70 – sestava přípojkových skříní plyn – HUP, elektroměrová a pojistková 1RD
- PENV90 – sestava přípojkových skříní plyn – HUP, elektroměrová a pojistková 2RD
- ERSR – pilíře se sestavou subdodavatelských skříní - verze široká
- ERSR – pilíře se sestavou subdodavatelských skříní - verze vysoká
