Rubriky:
- Plynoměrové skříně, HUP, průmyslové a technologické
- Elektro skříně
- Sestavy skříní a atypy -- energetické pilíře
- Příslušenství a ostatní sortiment

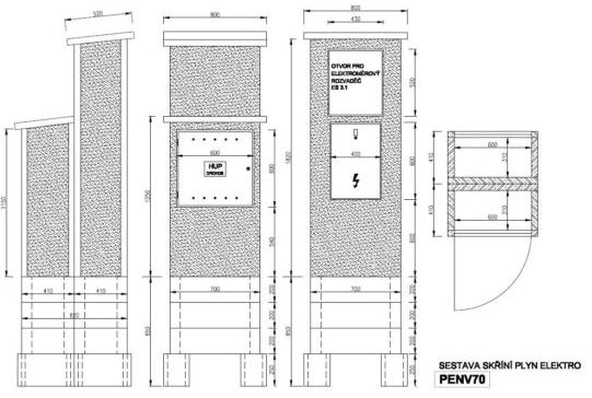
PENV70 – sestava přípojkových skříní plyn – HUP, elektroměrová a pojistková 1RD
- Použití:sestava ze skříní zády k sobě plynoměrová PO3 a elektroměrová / příprava pro osazení rozvaděče Arova Servis případně pro jinou elektroměrovou skříň / s pojistkovou pro jeden dům. Využívá se při budování nových sítí pro řadovou zástavbu, kde je požadavek na co nejužší přípojkový pilíř.
- Vnější rozměr:70/82/187 cm
- Hmotnost sestavy:732kg
- Základ:dílce výšky 20 cm – základové věnce ve třech vrstvách osazené kratší stranou na bednících tvárnicích vyplněných betonem.
PENV70 – sestava přípojkových skříní plyn – HUP, elektroměrová a pojistková 1RD - výkres





Obsah sekce Sestavy skříní a atypy -- energetické pilíře
- Sestavy skříní - INFO
- PE2 – sestava přípojkových skříní plyn – HUP a elektro
- ES2 – sestava přípojkových skříní elektro
- PE3 – sestava přípojkových skříní plyn – HUP, elektroměrová a pojistková 1RD
- PE5 – sestava přípojkových skříní plyn – HUP, elektroměrová a pojistková 2RD
- PEV – sestava přípojkových skříní plyn – HUP, elektroměrová a pojistková 1RD
- PEV – sestava přípojkových skříní plyn – HUP, elektroměrová a pojistková 2RD
- PE3 - 135 – pilíř se sestavou subdodavatelských skříní – plastových
- PE3-165 – pilíř se sestavou subdodavatelských skříní – beton-plastových
- PE3 - BPL – sestava přípojkových skříní plyn – HUP, elektroměrová a pojistková 1RD
- PENV70 – sestava přípojkových skříní plyn – HUP, elektroměrová a pojistková 1RD
- PENV90 – sestava přípojkových skříní plyn – HUP, elektroměrová a pojistková 2RD
- ERSR – pilíře se sestavou subdodavatelských skříní - verze široká
- ERSR – pilíře se sestavou subdodavatelských skříní - verze vysoká
